ÁRBOL DEL FUEGO

Calle: Árbol de fuego, # 43. Col. La Candelaria, Alc. Coyoacán. CMDX


RENDERS


PLANOS

CASA 1

PLANTA BAJA 107,29 m2

Cocina con despensa, estancia, estudio, terraza, patio, sanitario y cuarto de servicio.

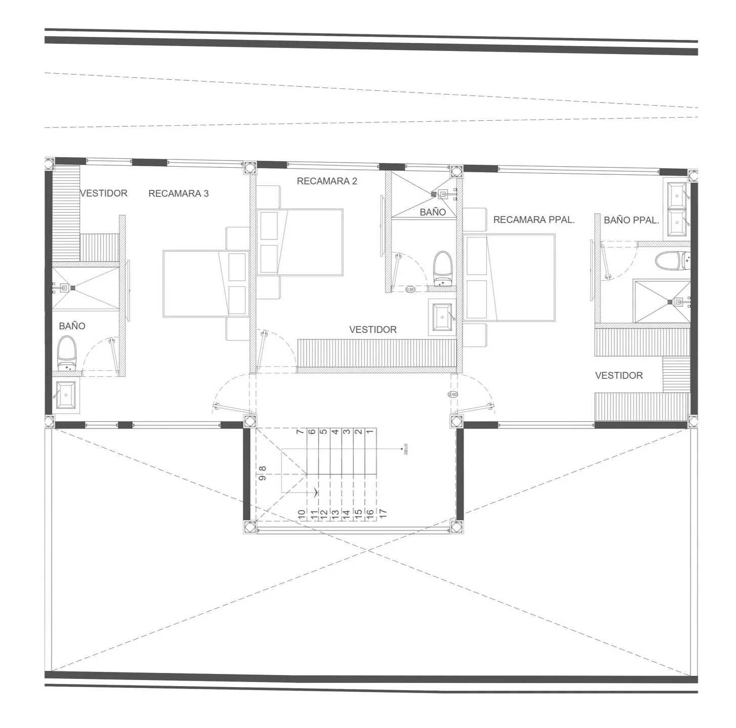
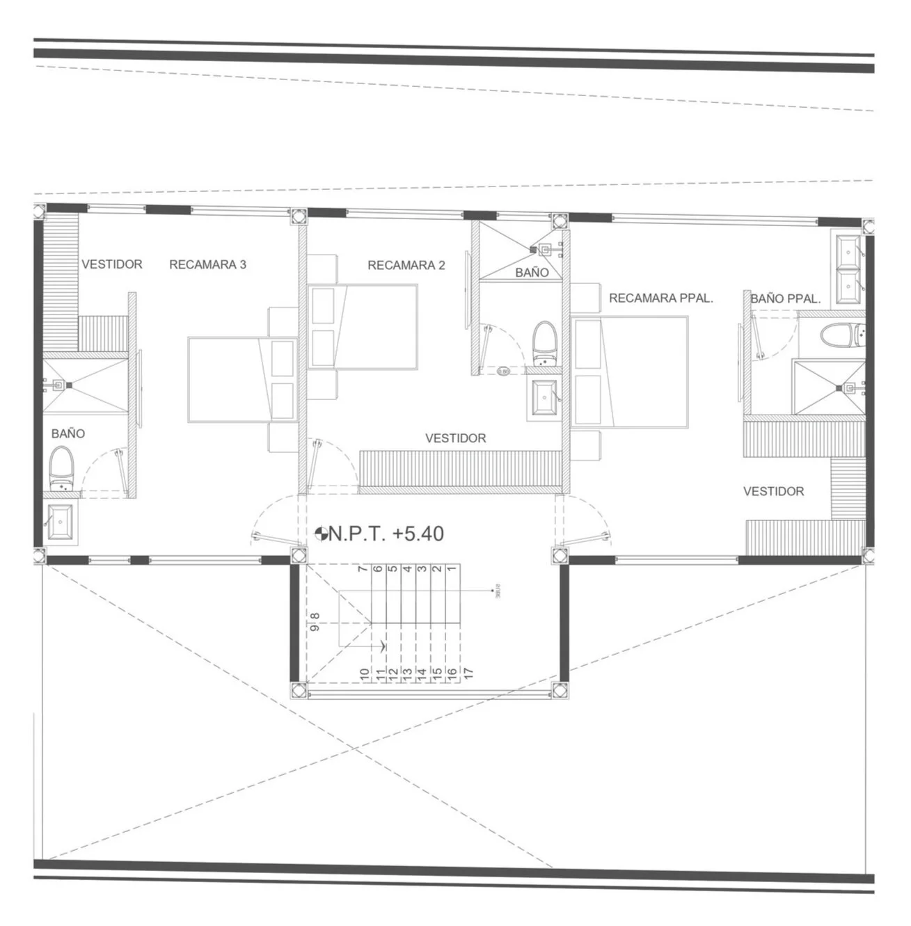
PLANTA ALTA 116,32 m2

Recamara principal con vestidor, 2 recamaras con baño cada una, sala de tv y balcones.

JARDÍN TECHO 116,32 m2

SEMISÓTANO / ESTACIONAMIENTO 55,65 m2

 

CASA 2

PLANTA BAJA 100,88 m2

Cocina con despensa, estancia, estudio, terraza, patio, sanitario y cuarto de servicio.

PLANTA ALTA 106.24m2

Recamara principal con vestidor, 2 recamaras con baño cada una, sala de tv y balcones.

JARDÍN TECHO 106,24 m2

SEMISÓTANO / ESTACIONAMIENTO 49,73 m2

CASA 3

Cocina con despensa, estancia, estudio, terraza, patio, sanitario y cuarto de servicio.

PLANTA ALTA 116,32 m2

Recamara principal con vestidor, 2 recamaras con baño cada una, sala de tv y balcones.

JARDÍN TECHO 116,32 m2

SEMISÓTANO / ESTACIONAMIENTO 55,65 m2


CASA 4

PLANTA BAJA 104,48 m2

Cocina con despensa, estancia, estudio, terraza, patio, sanitario y cuarto de servicio.

PLANTA ALTA 109,52 m2

Recamara principal con vestidor, 2 recamaras con baño cada una, sala de tv y balcones.

JARDÍN TECHO 109,52 m2

SEMISÓTANO / ESTACIONAMIENTO 49,73 m2


CASA 5

PLANTA BAJA 104,27 m2

Cocina con despensa, estancia, estudio, terraza, patio, sanitario y cuarto de servicio.

PLANTA ALTA 115,86 m2

Recamara principal con vestidor, 2 recamaras con baño cada una, sala de tv y balcones.

JARDÍN TECO 115,86 m2

SEMISÓTANO / ESTACIONAMIENTO 63,62 m2


CASA 6

PLANTA BAJA 104,21 m2

Cocina con despensa, estancia, estudio, terraza, patio, sanitario y cuarto de servicio.

PLANTA ALTA 104,25 m2

Recamara principal con vestidor, 2 recamaras con baño cada una, sala de tv y balcones.

JARDÍN TECHO 104,25 m2

SEMISÓTANO / ESTACIONAMIENTO 51,81 m2


FOTOS FINALES